板障装饰装修攻略_板障设计案例_板材隔断施工工艺
  • 首页
  • 装修攻略
  • 设计案例
  • 常见问题
  1. 首页
  2. 装修攻略 第6页
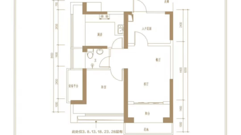
45㎡北京老破小,靠“软隔断”凭空多出一间房,她家改造太神了!
装修攻略

45㎡北京老破小,靠“软隔断”凭空多出一间房,她家改造太神了!

核心思路:轻硬装、重软装、功能叠加、动线优化。这篇就按这个思路,带你一步步把45㎡老破小改造成一室两厅的惬意小家。北京的老破小业主们,今天聊的这个话题我保证戳中你们痛点——45㎡要...

2026年4月24日 20
2026年装修必看|贴墙砖一平米多少钱?这5个隐藏增项,99%的人都不知道
装修攻略

2026年装修必看|贴墙砖一平米多少钱?这5个隐藏增项,99%的人都不知道

关键词:贴墙砖一平米多少钱|2026年装修报价防坑装修这事儿,最怕的就是“想省钱,结果花了冤枉钱”。尤其是贴墙砖这件事——看着不大,坑却不少。报价单上写着“贴砖50元/㎡”,你觉得...

2026年4月24日 20
2026年普通家庭装中央空调,先看完这几点再决定——真实账单、电费、层高和维修坑,都帮你算清楚了
装修攻略

2026年普通家庭装中央空调,先看完这几点再决定——真实账单、电费、层高和维修坑,都帮你算清楚了

装修进行到选空调这一步,很多人就开始纠结了——打开小红书一搜,全是装修博主晒的极简加长出风口,配上“中央空调一装,颜值翻倍”的文案,很难不动心。再加上销售跟你一顿分析:说中央空调比...

2026年4月24日 20
2026年买房办证全攻略|7个步骤顺利拿房本,材料清单+税费政策+避坑指南一篇讲透
装修攻略

2026年买房办证全攻略|7个步骤顺利拿房本,材料清单+税费政策+避坑指南一篇讲透

买房是件大喜事,可很多人签完合同交完钱,以为万事大吉了,结果到了办房产证这一步,材料东缺西缺、跑了好几趟还没搞定。别着急,房子既然买了,产权证就是你的“护身符”。我特意把2026年...

2026年4月24日 21
200平米佛山别墅装修预算价目表,2026年避坑指南与省钱密码,新手速看!
装修攻略

200平米佛山别墅装修预算价目表,2026年避坑指南与省钱密码,新手速看!

家里终于攒够首付在佛山买了套200平米的联排别墅,本来是件开心事,可一提到装修就懵了——问了几家装修公司,报价从三四十万到上百万不等,还听说装修中“增项加价”“材料以次充好”“合同...

2026年4月24日 22
100平米毛坯房最低费用清单|看完至少省3万
装修攻略

100平米毛坯房最低费用清单|看完至少省3万

很多朋友在佛山拿到毛坯房钥匙之后,第一个念头就是“装修到底要花多少钱”。说实话,这个问题我每天都要被问几十遍。今天咱就把100平米毛坯房装修费用这件事掰开揉碎了说,从拆改到水电,从...

2026年4月24日 21
2 3 4 5 6

热门文章

  • 标题:60平米装修全包到底要多少钱?2026年真实报价+全包优缺点分析,看完再决定值不值!

    标题:60平米装修全包到底要多少钱?2026年真实报价+全包优缺点分析,看完再决定值不值!

    2026-04-25 25

    01
  • 02

    2026小户型装修必看!不打墙不吊顶,5个“无痛显大”绝招,每1㎡都花在刀刃上

    2026-04-24 24

  • 03

    茂名二手房装修怎么挑设计师?预算1万元花出3万效果,看这6招就够了

    2026-04-25 23

  • 04

    2026酒店装修预算怎么做?算清这7笔账,不花冤枉钱的完整实战攻略

    2026-04-24 22

  • 05

    标题:老房地板不用砸!实木地板装or翻?盘点2026真实价格与保姆级安装步骤

    2026-04-25 22

随机文章 换一换

  • 低预算旧房翻新|成都屋顶花园改造1千元起(附避坑指南)

    低预算旧房翻新|成都屋顶花园改造1千元起(附避坑指南)

    2026-04-28 12

  • 7年经验总结:弱电系统设计方案做到这5点,至少省30%预算避开90%返工坑

    7年经验总结:弱电系统设计方案做到这5点,至少省30%预算避开90%返工坑

    2026-04-28 9

  • “二手房翻新真后悔!装修完住了仨月就返工?先看这15个‘后悔坑’再动工——少花冤枉钱,住得更省心”

    “二手房翻新真后悔!装修完住了仨月就返工?先看这15个‘后悔坑’再动工——少花冤枉钱,住得更省心”

    2026-04-24 21

  • 1500瓶试剂零失误,这间实验室布局做了3个反常规决定

    1500瓶试剂零失误,这间实验室布局做了3个反常规决定

    2026-04-27 13

  • 签订装修合同千万别说“都行”,先学会这“五大保命铁律”(附2026严防增项实战篇)

    签订装修合同千万别说“都行”,先学会这“五大保命铁律”(附2026严防增项实战篇)

    2026-04-25 22

最新评论

    板障装饰装修攻略_板障设计案例_板材隔断施工工艺底部Logo

    提供专业的板障装饰装修攻略,涵盖板障设计案例、板材隔断施工工艺、材料选购技巧及空间应用方案。每日更新实用干货,让装修更省心。

    © 2026 板障装饰装修攻略_板障设计案例_板材隔断施工工艺 . 沪ICP备2024074274号

    快捷导航

    1611806983@qq.com联系我们